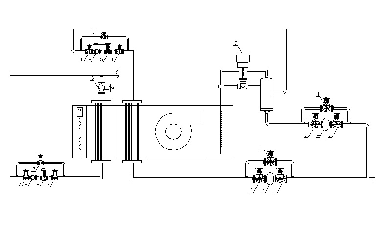
英僑機械產品在空調箱中的應用:

空調箱加熱疏水的特點:
1:需(xu)要連續不斷的大容量換熱
2:偶(ou)爾(er)有多組加熱(re)盤管組合加熱(re)
英僑機械產品特點:
1:內置止(zhi)回閥過濾器(qi),節(jie)省安裝空間和設備(bei)投資
2:內置雙(shuang)金屬熱靜力排(pai)冷空(kong)氣元(yuan)件,排(pai)空(kong)氣能(neng)力強
2:內置可在工作時排熱空氣功能的虹吸管(guan)
3:安裝(zhuang)(zhuang)靈活,可任意更(geng)換(huan)為(wei)水平(ping)或(huo)豎直(zhi)安裝(zhuang)(zhuang)
4:抗(kang)(kang)水錘(chui)能(neng)力強(qiang),可(ke)以抵抗(kang)(kang)180bar以上(shang)水錘(chui)。同時具備
自(zi)動(dong)水錘卸載功能。更好的保護閥門不受損壞。
5:疏(shu)水器浮球(qiu)控制元件(jian)可以在線拆洗和(he)更換,維護方便
英僑機械產品在空調箱加濕中的應用:

空調箱加濕疏水特點:
1:保證加濕蒸汽干燥
2:凝結水(shui)量較少(shao)
英僑機械產品特點:
1:內(nei)置過濾器,節省安裝空(kong)間和(he)設(she)備投資
2:可(ke)以快(kuai)速排放凝結(jie)水(shui)
3:反(fan)應(ying)靈(ling)敏,響(xiang)應(ying)速(su)度快
4:可在線拆洗和(he)更換疏水控制元(yuan)件

